works

建具製作・A様邸
(その他デザイン)
京都市・その他
2019年8月竣工
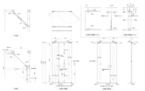
愛猫が飛び出さないように室内建具を製作しました。
details

- L字型の廊下に斜めに取りつく形で計画しました。
普段使用しないときは邪魔にならないよう全開します。
小窓からネコたちがこちらを覗いています。(笑)

- 壁に対して直角ではないため、タテ枠は取り付けず
金具はピポットヒンジを採用しました。
その位置を決めるのに、とても苦労しました…。

- 全開して納まるように、左右の建具の大きさが異なります。
既存コンセントやスイッチの位置を考慮したデザインです。




