一級建築士事務所 Bee design factory

一級建築士事務所 Bee design factory

works

家具デザイン・M様邸(その他デザイン)京都市・その他

家具デザイン・M様邸
(その他デザイン)
京都市・その他

2017年12月完成

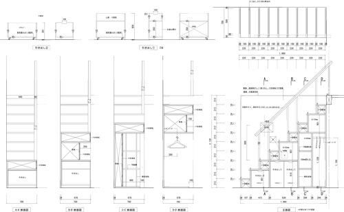
ロフトへ上がるための階段兼収納(箱階段)を製作しました。

details

ダイニングから見る
ダイニングから見る
詳細図面
詳細図面