一級建築士事務所 Bee design factory

一級建築士事務所 Bee design factory

works

家具デザイン・I様邸(その他デザイン)宇治市・その他

家具デザイン・I様邸
(その他デザイン)
宇治市・その他

2014年12月完成

造り付け家具のデザインをしました。
ウォールナットの無垢床に合わせて同材で仕上げました。

details

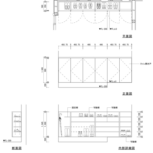
大型のシューズボックス
大型のシューズボックス
横のラインを強調した壁付けのTVボード
横のラインを強調した壁付けのTVボード
シューズボックス詳細図
シューズボックス詳細図
TVボード詳細図
TVボード詳細図